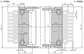
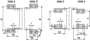
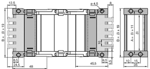
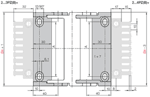
Qui è possibile configurare individualmente il sistema di catene portacavi. Tutti gli inserimenti e le modifiche vengono aggiunti all'elenco dei pezzi, che si trova a fine pagina.
Serie 2400AG - catena, apertura a scatto lungo il raggio interno
Il sistema autoglide è stato ampliato e ottimizzato ulteriormente per igus® E2/000. La maggiore superficie di scorrimento dei traversini autoglide prolunga la durata d'esercizio del sistema. Un'aletta di scorrimento applicabile garantisce l'allineamento sicuro della catena portacavi per primi metri della corsa. Le guide eccentriche sono fissate al pavimento ogni 2 metri.
Lunghezza catena = S + K3
Sono necessarie 2 alette di scorrimento per catena portacavi